お知らせ
2026/04/18 17:27 ~ なし
鎌倉市の飲食店設計事例|NEL PIZZOの店舗づくりと設計のポイント
鎌倉市・小町通りに、2026年4月にオープンした飲食店「NEL PIZZO」。
本計画は、同じテナントビルの2階で2004年から営業を続ける「Dolce far niente」の姉妹店としてスタートした、約18坪・24席のテナント改修プロジェクトです。
今回の計画では、観光客の多い路面店という立地を活かしながら、2階の既存店とは異なる役割を持たせることを大切にしました。
その中で、ピザを中心とした気軽に立ち寄りやすい業態づくり、テイクアウトに対応した入口計画、限られた面積の中での客席・厨房レイアウト、既存テナント改修ならではの工事上の調整など、さまざまなテーマに向き合いながら設計を進めています。
物件取得時は、前テナントが商品を撤去した段階の状態で、造作家具などの解体から着手する必要がありました。
また、工期は2026年1月中旬から2026年4月10日までと限られており、設備条件や現場の状況を確認しながら、開業に向けて計画を整えていく必要がありました。
さらに本件では、神奈川県の補助制度を活用しながら、厨房機器などの導入も進めています。
飲食店の開業では、デザインだけでなく、物件条件、設備インフラ、工事費、スケジュール、補助金の段取りまで含めて考えることが大切だと、あらためて感じたプロジェクトでもありました。
この記事では、NEL PIZZOの事例をもとに、鎌倉で飲食店を計画する際に考えたことや、レイアウトの工夫、既存テナント改修で見えてきた注意点を、できるだけわかりやすくご紹介します。
これから鎌倉・湘南エリアで飲食店の開業や改修を検討している方にとって、少しでも参考になれば幸いです。
この記事でわかること
- 鎌倉市の路面店で飲食店を計画するときの考え方
- 約18坪・24席の店舗で客席と厨房をどう整理したか
- 既存テナント改修で起こりやすい課題と、その対応の仕方
プロジェクト概要
所在地・業態・面積・工事種別
- 所在地:神奈川県鎌倉市
- 業態:イタリアン・飲食店
- 面積:59.78㎡(18.08坪)
- 席数:24席
- 工事種別:テナント改修工事
- 工期:2026年1月中旬〜2026年4月10日
- 施工:株式会社 ヌマタ(葉山)
依頼の背景とオーナーのご要望
この計画は、同じテナントビルの2階で長く営業されている「Dolce far niente」のオーナー様が、姉妹店として新たに企画されたものです。
2階のお店は、比較的ゆったりと食事を楽しめるイタリアンレストランです。
そのため1階の新店舗では、同じイタリアンでも役割を少し変え、より気軽に立ち寄れる店舗にしたい、という方向性がありました。
観光地の路面店という特性を活かしながら、既存店と無理なくすみ分けができること。
そして、通りを歩く方にも入りやすいお店にすること。
こうした点を大切にしながら、計画を整理していきました。
Dolce far niente
https://dolcepanda-kamakura.com
https://www.instagram.com/dolce__far__niente__/
この店舗で重視した設計テーマ
NEL PIZZOで重視したのは、路面店としての入りやすさと、限られた面積の中での使いやすさです。
小町通りは観光で訪れる方が多く、人の流れもある通りです。
そのため、店舗の前を通った方に内容が伝わりやすく、気軽に足を止めてもらえることがとても重要でした。
一方で、店内では落ち着いて利用できること、スタッフにとっても無理のない動線になることが求められます。
見た目だけでなく、営業のしやすさまで含めてバランスを整えることが、この店舗づくりの大きなテーマでした。
この店舗で重視した設計テーマ
NEL PIZZOで重視したのは、路面店としての入りやすさと、限られた面積の中での使いやすさです。
小町通りは観光で訪れる方が多く、人の流れもある通りです。
そのため、店舗の前を通った方に内容が伝わりやすく、気軽に足を止めてもらえることがとても重要でした。
一方で、店内では落ち着いて利用できること、スタッフにとっても無理のない動線になることが求められます。
見た目だけでなく、営業のしやすさまで含めてバランスを整えることが、この店舗づくりの大きなテーマでした。

コンセプト立案で考えたこと
立地と客層から見た業態の整理
2階の既存店が、落ち着いて食事を楽しむレストランであることを踏まえると、1階では路面店としての魅力をより活かせる業態が合うのではないかと考えました。
そこで提案したのが、軽食を中心とし、テイクアウトにも対応しやすいピザを主役にした業態です。
小町通りでは食べ歩きを楽しむ方も多く見られますが、ピザを気軽にテイクアウトできる形は比較的珍しく、観光との相性もよいと感じられました。
また、地元の食材を取り入れやすい点も、鎌倉らしさを表現しやすい要素のひとつでした。
立地、客層、既存店との役割分担をふまえながら、1階ならではのあり方を形にしていきました。
席数・客単価・回転率の考え方
店舗づくりでは、デザインだけでなく、席数や客単価、回転率といった運営面の考え方も大切です。
今回のテナントは間口が限られていたため、レイアウトは2人席を中心に計画しました。
2人席を基本としながら、必要に応じて組み合わせれば4人席としても使えるようにしています。
こうすることで、少人数利用にもグループ利用にも対応しやすくなり、時間帯によって使い方を変えやすくなります。
価格帯は比較的気軽に利用しやすい方向を意識し、無理のない回転が見込めるような構成を考えました。
こうした点は、設計というより経営計画に近い部分もありますが、店舗の空間構成とも深く関わっています。
売上に寄与する動線と客席計画
客席は多ければよいというものではなく、配膳や片付けのしやすさ、お客様が感じる居心地とのバランスがとても重要です。
席を増やしすぎると、店内が落ち着かなくなったり、スタッフの動きが窮屈になったりすることもあります。
そのため今回は、少しでも客席を確保しながら、無理のない動線と居心地を両立できるよう、何度もレイアウトを検討しました。
既存店舗の2階も活用しながら、実際に座席配置を試して確認したことも、この計画ならではの検討のひとつです。
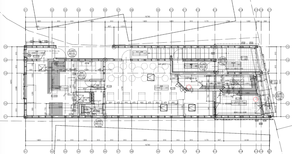
飲食店設計で検討したレイアウトのポイント
厨房レイアウトとオペレーション
飲食店では、厨房の位置や広さだけでなく、レジ、ドリンク、テイクアウトとの関係もとても重要です。
今回の店舗でも、厨房、ドリンクコーナー、テイクアウト対応、レジカウンターといった機能が必要でした。
理想的には、それぞれがなめらかにつながることで、よりスムーズなオペレーションが期待できます。
ただし今回は、既存建物の構造やスペースの制約もあり、すべてを一体的に組み込むのは難しい面がありました。
そこで、厨房は独立性を保ちつつ、ドリンク・テイクアウト・レジまわりをまとめる形に整理しました。
限られた条件の中でも、実際の使いやすさに配慮した構成を目指しています。
客席配置と居心地のつくり方
約18坪・24席という規模では、客席配置の工夫が店舗全体の印象を大きく左右します。
通路幅、テーブル同士の距離、視線の抜け方などを丁寧に調整することで、同じ面積でも感じ方は大きく変わります。
NEL PIZZOでは、必要な席数を確保しつつ、窮屈に感じにくい配置を意識しました。
コンパクトな店舗ならではの親しみやすさを活かしながらも、落ち着いて過ごせる雰囲気を保てるようにしています。
カウンター計画と視線の演出
路面店としての特徴を活かすため、入口まわりやカウンターの見せ方は特に重視しました。
店頭にはテイクアウト用のメニューを見せるショーケースを設け、通りからもお店の内容が伝わりやすいようにしています。
また、通りに直接対応できる小窓を設けることで、店内利用だけでなく、街を歩く方にも自然にアプローチできる構成としました。
観光地の店舗では、こうした足を止めてもらうきっかけづくりがとても大切だと考えています。
スタッフ動線・配膳動線・回収動線
スタッフの動きやすさは、お店の営業のしやすさに直結します。
厨房から客席への配膳、下げものの回収、レジ対応、テイクアウト対応が無理なく行えることが重要です。
今回の店舗では、客席数を確保しながらも、スタッフの動線が極端に交錯しないように調整を重ねました。
見た目には表れにくい部分ですが、こうした動線計画は、日々の営業を支える大切な要素です。

デザイン計画と素材選定
店舗の世界観をどう形にしたか
観光地にある飲食店は、食事の場であると同時に、その街での体験の一部にもなります。
そのためNEL PIZZOでは、目的地へ向かう途中でもふらっと立ち寄れ、鎌倉での思い出のひとつとして残るような空間を目指しました。
華やかすぎる演出ではなく、街の空気になじみながらも印象に残ること。
そうしたバランス感覚を大切にしながら、店舗の世界観を整えていきました。
内装材・照明・色彩の考え方
内装の色づかいには、鎌倉の海や山といった自然の印象をさりげなく取り入れています。
ただし、テーマ性を強く出しすぎると少し演出的になりすぎるため、全体としては落ち着きのあるまとまりを意識しました。
具体的には、客席には海や空のアクティブなイメージを感じる青を、トイレには山の落ち着きを感じる緑をアクセントとして採用しています。
観光地らしさを感じさせつつ、日常的にも使いやすい雰囲気を目指しました。
ファサード・サイン・入口計画
小町通りは、歴史的な雰囲気と観光地らしいにぎわいが共存する通りです。
さまざまな表情の店舗が並ぶ中で、NEL PIZZOの外観は、あえて過度に飾り立てず、できるだけシンプルに整えることを目指しました。
和風を意識した店構えや、街に向かって商品を見せる店舗も多い中で、周辺の景色になじみながらも、すっきりと印象に残ること。
そのため、ファサードや入口の計画では、主張しすぎない中にも視認性が出るよう意識してデザインしています。
工事費と計画条件について
建設費高騰の影響
近年は、建設資材や設備機器、労務費などの上昇が続いており、店舗づくりにかかる費用も以前より大きくなりやすい状況があります。
今回の計画でも、当初想定していた予算と、実際に必要となる工事費との間で調整が必要な場面がありました。
これは特定の現場に限った話ではなく、現在の建設業界全体で見られる傾向のひとつです。
そのため、店舗づくりでは早い段階から予算と内容のバランスを見ながら進めることが、より大切になっていると感じます。
既存テナントにインフラがなかったこと
今回の区画は、もともと物販系のテナントとして使われていた場所でした。
そのため、飲食店に必要な給排水、空調換気、電気設備などを新たに整えていく必要がありました。
飲食店では、内装や厨房機器だけでなく、それらを支えるインフラ整備が重要です。
既存の条件によっては、表からは見えにくい部分の工事が全体に大きく影響することがあります。
現地調査の難しさと不確定要素
今回は、空きテナントにすぐ着手する形ではなく、前テナント様の退店時期に合わせて計画を進める必要がありました。
そのため、営業中の段階では工事に向けた十分な現地確認がしづらい部分がありました。
こうした場合、設計段階で把握できることには一定の限界があります。
もちろん、可能な範囲で事前に確認を進めることは大切ですが、既存テナント改修では、工事に入ってから見えてくる条件があるのも実情です。
工事中に判明した劣化・図面不整合
工事が始まってから、受領していた既存図面と現地の状態に差がある箇所がいくつか確認されました。
また、前テナントの造作家具などの解体を進める中で、建物側に修繕が必要な箇所も見つかりました。
こうした内容は、既存建物の改修では比較的よくあることで、必ずしも事前にすべてを把握できるとは限りません。
そのため、現場で確認しながら、必要な範囲で柔軟に対応していくことが重要になります。
資金計画と補助金活用
補助金をどう検討したか
本件では、商工会議所を通じて活用できる補助制度を検討し、厨房機器の一部に補助金を活用しています。神奈川県の制度を活用し進められたと伺っています。
補助金を利用する場合は、対象経費だけでなく、申請、導入、設置、報告までのスケジュール管理もとても重要です。
今回も、年度内の機器搬入や実績報告を見据えながら、設計・工事・開業の流れを調整していきました。
初期投資と回収の見通し
飲食店では、初期投資と売上計画のバランスを整理しておくことが大切です。
NEL PIZZOでも、客席数、満席率、回転率、客単価をもとに売上のイメージを整理しながら、工事費や設備費との兼ね合いを検討しました。
そのうえで、見積内容を確認しながら、必要に応じて内容の整理や仕様の調整を行い、全体のバランスを整えていきました。
限られた予算の中で、どこにしっかり費用をかけ、どこを工夫するかを考えることも、設計の大切な役割のひとつだと思います。
工事中に起きた変更と設計対応
追加工事の発生理由
今回の工事では、建物側の劣化が見つかったことや、既存図面と現地の違いが確認されたことなどから、現場での追加対応が必要になる場面がありました。
また、事前の現地確認に限界があったこともあり、工事が進む中で見えてきた条件にあわせて調整を行う必要がありました。
既存テナントの改修では、このように着工後に条件が明確になることも少なくありません。
そのため、一定の柔軟性をもって進めることが大切になります。
既存建物と受領図面の差異
現地確認を進める中で、図面上では存在するはずの壁がなかったり、壁や柱、開口部の位置が実際とは異なっていたりする箇所が見つかりました。
図面はとても大切な資料ですが、既存建物では必ずしも現状を完全に表しているとは限りません。
特に改修を重ねてきた建物では、現地とのズレが生じていることがあります。
現場での設計変更の判断基準
現地の状況と図面に差があるまま、そのまま工事を進めてしまうと、厨房機器が収まらない、通路が狭くなる、使い勝手に支障が出るといった問題につながる可能性があります。
そのため今回は、現地の状況を確認したうえで、必要な範囲で設計内容を見直しながら対応しました。
現場に合わせて丁寧に判断し直すことが、結果として無理のない店舗づくりにつながると感じています。
この事例から学べること
飲食店の開業前に確認すべきこと
既存テナントで飲食店を始める場合、まず確認したいのは、飲食店として必要なインフラが整っているかどうかです。
給排水、電気容量、換気、空調などは、見た目だけでは判断しにくいことも多いため、早い段階で確認しておくことが大切です。
また、図面が残っていても、現地と完全に一致しているとは限りません。
見える範囲の劣化の有無や、設備更新の必要性も含めて、物件選びの段階から整理できると安心です。
資金面では、活用できる補助金があるか、その補助金にどのような期限や条件があるかを確認しておくことも重要です。
補助金は心強い制度ですが、使うためにはスケジュール管理も必要になるため、必要に応じて専門家に確認が必要です。
設計者に早めに相談するメリット
飲食店の計画では、「この物件で本当にできるのか」「席数はどれくらい確保できそうか」「厨房や客席のバランスはどう考えるべきか」など、開業前に整理しておきたいことがたくさんあります。
これらは、工事が始まってから考えるより、できるだけ早い段階で整理しておく方が、計画全体が進めやすくなります。
特に既存テナントの改修では、見えない条件が後から見つかることもあるため、物件選びや事業計画の段階から設計者に相談しておくことには大きな意味があります。
まとめ
NEL PIZZOで実現したこと
NEL PIZZOでは、同じ建物の2階にある既存店との役割分担を意識しながら、1階の路面店としての魅力を活かした店舗づくりを行いました。
気軽に立ち寄れるピザ中心の業態、テイクアウトに対応した入口計画、限られた面積の中での客席計画、そして鎌倉らしさを感じられるデザイン。
こうした要素をひとつずつ整理しながら、店舗全体を形にしていきました。
また、既存テナント改修ならではの難しさや、工事中に見えてきた条件に向き合いながら、現場に合わせて丁寧に調整を重ねていったことも、このプロジェクトの大きな特徴でした。
これから飲食店を計画する方へ
飲食店の開業や改修では、デザインだけでなく、物件条件、設備、動線、工事費、スケジュール、補助金など、さまざまな要素が重なり合います。
そのため、早い段階から全体像を整理しながら進めることが、結果としてスムーズな店舗づくりにつながります。
鎌倉や湘南エリアで飲食店の新規開業や改修を検討されている方にとって、本事例が少しでも参考になればうれしく思います。







